Verkocht:Oranjeplein 84A, 6224 KP Maastricht - Foto
Verkocht
+17

Oranjeplein 84A 6224 KP Maastricht

  • Appartement
  • 2 kamers
  • 1 slaapkamer(s)
  • 1 badkamer
  • Bouwjaar 1965
  • 61 m² gebruiksoppervlakte
  • D Energielabel D

Beschrijving

Kracht Makelaars biedt te koop aan dit gestoffeerde appartement met 1 slaapkamers en eigen garage (optioneel) aan 'de Groene Loper'.
Het appartement is ideaal voor een (studerende) starterskoppel of alleenstaande en gelegen in het onderhuis van Residence Oranjestaete'.

De ligging van het appartement is ideaal, met snelle toegang tot de uitvalswegen, het stadscentrum Maastricht en Wyck op loopafstand, zo ook de AH XL en diverse leuke horecazaken. De Groene Loper biedt een groene en rustige omgeving om te wandelen of te ontspannen, maar je bent ook in een paar minuten fietsen in de stad. Bovendien kun je optioneel een eigen garage aankopen voor het veilig stallen van je auto of voor extra opslag.

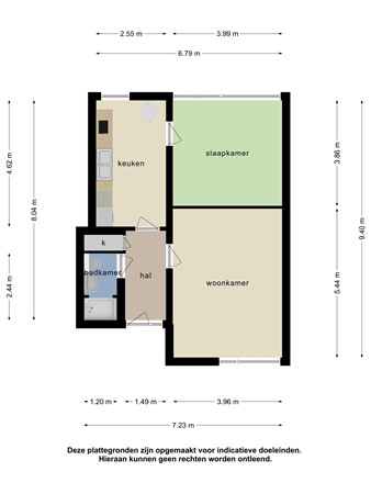
Indeling:
Beg. grond: gemeenschappelijke entree met brievenbussen en beltableau, trappenhuis en lift.
Het onderhuis is te bereiken via trappenhuis of lift, maar ook via de achterom.

Appartement: Via de entree/hal van het appartement zijn alle vertrekken bereikbaar.
De geheel betegelde badkamer is v.v. een wasmeubel, spiegel, plancet, douchecabine, handdoekradiator en hangcloset.

De eenvoudige centraal gelegen gesloten keuken beschikt over voldoende opbergruimte en is voorzien van een plavuizen vloer, inbouw -kookplaat en -afzuigkap. Tevens is hier de warmwaterboiler (elektrisch) en de wasmachine-aansluiting voorzien.

De woonkamer is behoorlijk ruim (ca. 5.44x3.96) en v.v. een laminaatvloer en rolluiken.

De slaapkamer van ca. 3.96x3.86 is eveneens voorzien van een laminaatvloer en rolluiken.

Tevens beschik je als bewoners over een bergkast.

Buitenruimte: N.B. aan het afdak de voordeur is het mogelijk om even lekker het zonnetje te pakken.

Parkeren: de optioneel aan te kopen garage is elektrisch bedienbaar en biedt plaats aan 1 auto.

Kenmerken:
- Gebruiksopp. wonen: ca. 61 m²
- Energielabel D;
- Geheel voorzien van rolluiken;
- VvE bijdrage: € 205,64
- Voorschot stookkosten blokverwarming: € 144,05
- Bouwjaar: 1965.

Vraagprijs: € 199.000,- k.k.
Vraagprijs garage (optioneel): € 20.000 k.k.
Aanvaarding: per direct.

Bij deze woning wordt standaard in de koopakte een waarborgsom/bankgarantie van 10% opgenomen.
Alle aangegeven maatvoeringen betreffen circa maten.
Voor meer informatie of voor het maken van een afspraak tot bezichtiging kunt u contact opnemen met ons kantoor: 043-2010659.

Nadere informatie / disclaimer
Ter bescherming van de belangen van zowel koper als verkoper, wordt uitdrukkelijk gesteld dat een koopovereenkomst met betrekking tot deze onroerende zaak eerst dan tot stand komt nadat koper en verkoper de koopovereenkomst hebben getekend (“schriftelijkheidsvereiste”).

De termijn die wordt opgenomen voor eventuele (overeengekomen) ontbindende voorwaarden (bv. Financiering) is in de regel 4 tot 6 weken na het sluiten van de mondelinge wilsovereenkomst.

De waarborgsom/bankgarantie is 10% van de koopsom. De koper dient deze 2 weken ná het vervallen van de ontbindende voorwaarden bij de desbetreffende notaris te deponeren.

Koper is te allen tijde gerechtigd voor eigen rekening een bouwkundige keuring te (laten) verrichten dan wel andere adviseurs te raadplegen teneinde een goed inzicht te verkrijgen over de staat van onderhoud.

Deze informatie is door ons met de nodige zorgvuldigheid samengesteld. Onzerzijds wordt echter geen enkele aansprakelijkheid aanvaard voor enige onvolledigheid, onjuist of anderszins, dan wel de gevolgen daarvan. Alle opgegeven maten en oppervlakten zijn indicatief. Van toepassing zijn de algemene voorwaarden van KM.

Kaart

Kenmerken

Overdracht

Referentienummer
00035
Vraagprijs
€ 199.000,- k.k.
Servicekosten
€ 205,65
Verwarming
€ 144,65
Status
Verkocht
Aanvaarding
Direct
Aangeboden sinds
Maandag 18 augustus 2025
Laatste wijziging
Dinsdag 11 november 2025

Bouw

Type object
Appartement, galerijflat
Woonlaag
1e woonlaag
Soort bouw
Bestaande bouw
Bouwperiode
1965
Dakbedekking
Bitumen
Type dak
Platdak
Isolatievormen
Grotendeels dubbel glas

Oppervlaktes en inhoud

Woonoppervlakte
61 m²
Woonkameroppervlakte
21,48 m²
Keukenoppervlakte
11,96 m²
Inhoud
152 m³
Oppervlakte overige inpandige ruimten
0,5 m²

Indeling

Aantal bouwlagen
1
Aantal kamers
2 (waarvan 1 slaapkamer)
Aantal badkamers
1

Locatie

Ligging
Dichtbij openbaar vervoer
Nabij school
Nabij snelweg

Energieverbruik

Energielabel
D

Uitrusting

Warm water
Elektrische boiler
Verwarmingssysteem
Blokverwarming
Ventilatie methode
Mechanische ventilatie
Natuurlijke ventilatie
Badkamervoorzieningen
Douche
Toilet
Wastafel
Heeft kabel-tv
Ja
Heeft rolluiken
Ja
Heeft schuur/berging
Ja
Heeft ventilatie
Ja

Vereniging van Eigenaren

Ingeschreven bij de KvK
Ja
Jaarlijkse vergadering
Ja
Reservefonds
Ja
Meer jaren onderhoudsplan
Ja
Opstal verzekering
Ja

Kadastrale gegevens

Kadastrale aanduiding
Maastricht F 3998
Omvang
Appartementsrecht of complex
Eigendomsituatie
Zie akte
Indexnummer
1

Media

Plattegronden

Loop je droomwoning niet mis

Schrijf je in en ontvang het nieuwste aanbod in de mail

Gratis zoekopdracht